Tiek pārdots vienistabas dzīvoklis Vīlipa ielā 12, Āgenskalnā – klusā un zaļā vietā pie Botāniskā dārza. Dzīvoklis atrodas ēkas otrajā stāvā, ēkā ir lifts, sakopta teritorija un mierīga apkārtne.
Dzīvokļa kopējā platība ir 50,1 m², no kuriem 46 m² ir dzīvojamā platība. Ir plaša lodžija, kas piemērota ikdienas atpūtai vai darba zonai. Telpas ir gaišas, ar augstiem griestiem (2,95 m) un lieliem logiem, kas ielaiž daudz dabiskās gaismas un rada atvērtības sajūtu.
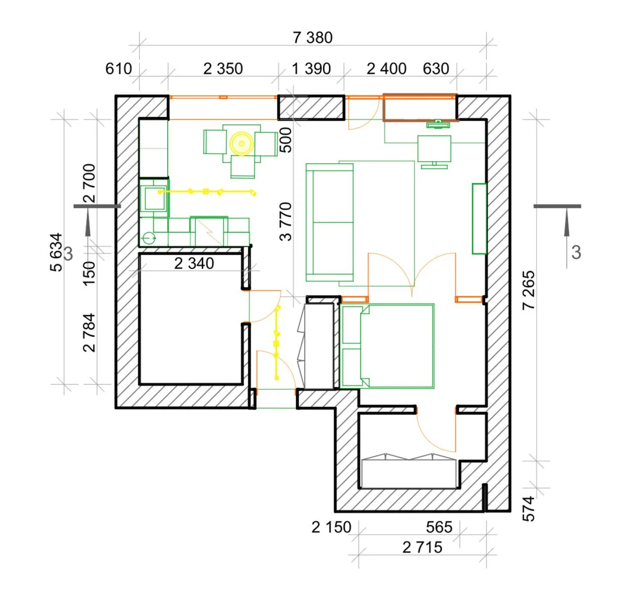
Plānojums šobrīd ir atvērta tipa studija, taču ir izstrādāts projekts pārplānošanai uz divistabu dzīvokli ar garderobi. Vannas istaba ir plaša un ērta, aprīkota ar apsildāmu grīdu un vietu glabāšanai.
Dzīvoklis ir labā stāvoklī – iespējams ievākties uzreiz, ar iespēju pielāgot telpas pēc savām vēlmēm. Papildus pieejams stāvvietas nomas līgums slēgtā teritorijā par 45 EUR mēnesī.
Atrašanās vieta ir īpaši ērta – tieši pretī atrodas Botāniskais dārzs, dažu minūšu gājienā Rīgas Stradiņa universitāte, kā arī tirdzniecības centri "Spice", "Olimpia", Kalnciema kvartāls, skolas un bērnudārzi. Blakus pieejams sabiedriskais transports – tramvaji, autobusi un vilciens. Ātrs savienojums ar pilsētas centru, lidostu un Jūrmalu – viss sasniedzams 10–15 minūtēs.
Sludinājumam pievienots arī iespējamās pārplānošanas plāns.